Lokal usługowy 59,60 m2
Spółdzielnia Budowlano-Mieszkaniowa „Batory” ogłasza konkurs ofert na wynajęcie Lokalu użytkowego przy ul. Bruna 34 (w pobliżu skrzyżowania ulic Rakowieckiej i Boboli).
Powierzchnia lokalu: 59,60 m2
Preferowany najem długoterminowy, dla firm z działalnością o profilu spożywczo-piekarniczym, cukierniczym, czyli cukiernia, piekarnia lub mała gastronomia, np. pierogarnia, naleśnikarnia.
Lokal składa się z trzech pomieszczeń gospodarczych oraz toalety. Zawiera niezbędne media dot. ww. profilu działalności. Istnieje możliwość adaptacji lokalu do potrzeb najemcy.
Z uwagi na fakt, że lokal jest w najmie do 30 listopada 2025 r. możliwość obejrzenia dotyczy tylko pomieszczeń ogólnodostępnych.
Lokal będzie dostępny od 1 grudnia 2025 r.
Wysokość minimalna czynszu najmu miesięcznie: 4000 zł netto + opłaty eksploatacyjne, tj. woda, odprowadzenie ścieków, c.o., wywóz nieczystości oraz podatek od nieruchomości i opłata z tytułu użytkowania wieczystego gruntu. Wybór i podpisanie umowy z dostawcą energii elektrycznej pozostaje w gestii najemcy.
UWAGA! PREZENTOWANE ZDJĘCIA ZAWIERAJĄ WYPOSAŻENIE NIE BĘDĄCE CZĘŚCIĄ LOKALU. NAJEM DOTYCZY LOKALU BEZ UMEBLOWANIA I DODATKOWYCH SPRZĘTÓW.
Oferty prosimy składać w biurze Spółdzielni: ul. Bruna 32, Warszawa, listownie na adres SBM „Batory” ul. Bruna 32, 02-594 Warszawa lub na adres kontakt@sbmbatory.pl
Lokal mieszkalny 49,70 m2
Spółdzielnia Budowlano-Mieszkaniowa „Batory” ogłasza konkurs ofert na wynajem lokalu mieszkalnego. Lokal jest po remoncie, biały montaż, kuchnia umeblowana, pozostałe pomieszczenia do umeblowania.
Budynek zlokalizowany jest niedaleko Pola Mokotowskiego, na wysokości ulic Biały Kamień i Rostafińskich.
Powierzchnia lokalu: 49,70 m2
Dobrze skomunikowany: stacja metra Pole Mokotowskie – 400 m, przystanki: autobusowy – 10 m i tramwajowe – 50 m. Dojazd do centrum – 10 min., do Galerii Mokotów – 5 min., do lotniska – 15 min. Niedaleko znajdują szpitale: przy Wołoskiej i przy Banacha.
W budynku znajduje się sklep spożywczy, piekarnia, poczta, salon urody, punkt naprawy sprzętu AGD. W pobliżu znajdują sklepy, restauracje i kawiarnie.
Możliwość parkowania na wewnętrznym parkingu przy budynku.
Wysokość minimalna czynszu najmu miesięcznie: 3000 zł netto + opłaty eksploatacyjne, tj. woda, odprowadzenie ścieków, c.o., wywóz nieczystości oraz podatek od nieruchomości i opłata z tytułu użytkowania wieczystego gruntu. Wybór i podpisanie umowy z dostawcą energii elektrycznej pozostaje w gestii najemcy.
Preferowany najem długoterminowy.
Oferty w zaklejonych kopertach prosimy składać pocztą na adres: SBM „Batory” ul. Bruna 32, -02-594 Warszawa, w siedzibie Spółdzielni – ul. Bruna 32 lub na adres kontakt@sbmbatory.pl do dnia 30 września 2025 roku.
Spółdzielnia zastrzega sobie możliwość zakończenia przetargu przed wyznaczonym terminem bez podania przyczyny.
Lokal usługowy około 336 m2
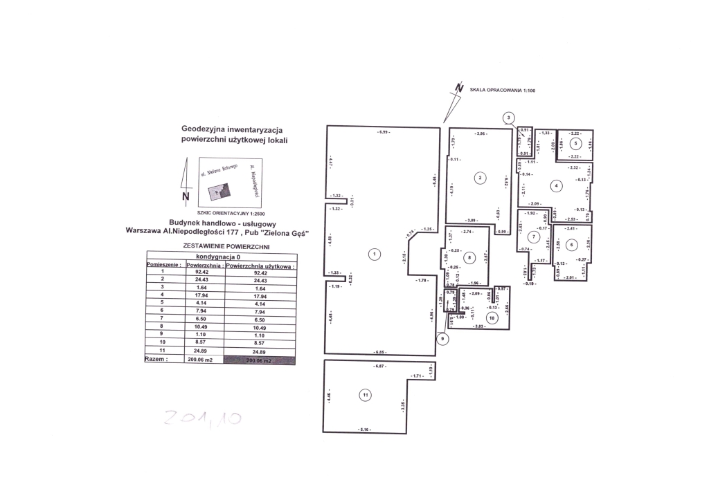
Spółdzielnia Budowlano-Mieszkaniowa „Batory” ogłasza konkurs ofert na wynajęcie lokalu użytkowego (obecnie pub Zielona Gęś) przy al. Niepodległości 177 (w pobliżu skrzyżowania ulic Rakowieckiej i Batorego).
Lokal usytuowany jest na parterze budynku i składa się z 11 pomieszczeń o łącznej powierzchni ok. 200 m2. Do lokalu przynależy również 9 pomieszczeń na kondygnacji -1 o łącznej powierzchni ok. 136 m2. Możliwość własnej aranżacji pomieszczeń. Grunt pod budynkiem ma uregulowany status prawny – użytkowanie wieczyste. Możliwość posadowienia ogródka letniego, teren jest dzierżawiony od miasta.
Preferowany najem dla firm z działalnością o profilu gastronomicznym: pub, restauracja. Lokal posiada zaplecze oraz urządzenia sanitarne pozwalające na tego typu działalność.
Lokal będzie dostępny od 1 stycznia 2026 r.
Wysokość minimalna czynszu najmu miesięcznie: 55000 zł netto + opłaty eksploatacyjne, tj. woda, odprowadzenie ścieków, c.o., wywóz nieczystości oraz podatek od nieruchomości, opłata z tytułu użytkowania wieczystego gruntu, czynsz dzierżawny.
Preferowany najem długoterminowy. Wybór i podpisanie umowy z dostawcą energii elektrycznej oraz dostawcą TV i internetu pozostaje w gestii najemcy.
Z uwagi na fakt, że lokal jest w najmie do 31 grudnia 2025 r. możliwość obejrzenia dotyczy tylko pomieszczeń ogólnodostępnych.
Oferty prosimy składać w biurze Spółdzielni: ul. Bruna 32, Warszawa, listownie na adres SBM „Batory” ul. Bruna 32, 02-594 Warszawa lub na adres kontakt@sbmbatory.pl

